10秒估算,少花冤枉钱
装修要花多少钱?
装修要花多少钱?
今天已经有 5686 位获取了装修预算
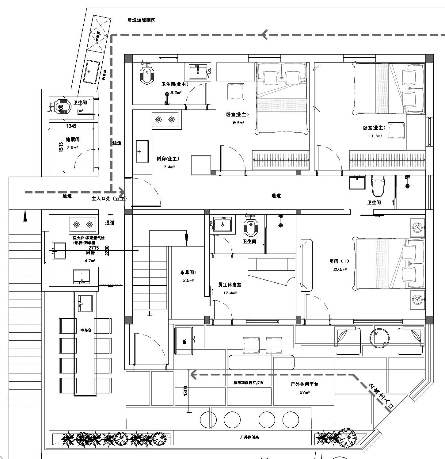
项目名称:桂山公寓
风格定位:现代侘寂风格(隶属现代风格大类,以质朴的肌理、柔和的色调、自然的材质为核心,融合现代设计的简洁线条,营造宁静且具质感的居住氛围,强调 “不完美中的美” )
建筑面积:160㎡


(一)主卧


卫生间延续现代侘寂风格,微水泥墙面搭配黑色金属线条,干湿分离布局保障实用。智能镜柜与悬浮式洗手台简洁大气,橙色玻璃盆与圆形镂空设计增添细节层次,暗藏灯带与自然光交织,在洗漱场景中诠释 “质朴中的精致”。




(四)露台
露台以玻璃顶与金属框架构建通透空间,微水泥地面搭配木质家具,粉色花藤点缀其间,营造自然野趣氛围。吧台区域的大理石台面与金属吊灯形成质感对比,嵌入式冰箱与休闲座椅布局,让户外场景成为 “自然与生活的互动场”,尽显现代侘寂的 “自然共生” 理念。






